Ár: 62.900.000 Ft(197.216 €) |
ID: 388482 |

Eladó:
 |
Nyegrutz Tibor Tulajdonos/Ügyvezető
+36 30 250 4987 ny.tibor @ ingatlanbudafok.hu |
|
Ingatlan adatok:
Ár: | 62.900.000 Ft
(197.216 €) |
Elhelyezkedés: | 1223 Budapest XXII. kerület (Budatétény) |
Tranzakció típusa: | Eladó |
Ingatlan típusa: | Lakás / Tégla |
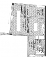
Alapterület: | 39 m2 | Szobaszám: | 2 | Építés éve: | 2009 | Kizárólagos megbízás: | IGEN | Állapot: | Jó állapotú | Komfort: | Összkomfortos | Tetőtér: | Nem tetőtéri | Emelet: | 2. emelet | Lift: | Van | Fűtés: | Házközponti fűtés egyedi méréssel | Belmagasság: | 3 méter alatt | Terasz: | 3 m2 | Akadálymentesített: | Igen | Kertkapcsolatos: | Nem | Kilátás: | Panorámás
| Tájolás: | Délkelet
| Parkolás: | Közterületen parkolás | Extrák: | Amerikai konyhás
|
|
Kizárólag az irodánk kínálatában elérhető ajánlat!
A lakás nem lakott, rövid határidővel szinte azonnal birtokba vehető!
Ha csendes, kertvárosias környezetben, jó közlekedéssel keresi álmai lakását, akkor ez a lakás az Ön számára az ideális megoldás!
XXII. kerületben, a Campona Bevásárlóközpont közvetlen vonzáskörzetében kínálunk megvételre egy 2009-ben épült társasház 2. emeletén lévő 38m2 + 3m2 panorámás erkéllyel rendelkező társasházi lakást.
Helyiségei:
-előszoba, fürdőszoba, WC+kézmosó, amerikai-konyha nappali, hálószoba, gardrób, erkély
Tájolásának és 2. emeleti elhelyezkedésének köszönhetően napfényes és világos.
Műszaki leírás /részlet/
- kiépített riasztórendszer
- összes nyílászáró redőnnyel felszerelt
- beépített, gépesített konyhabútor
- a lakásban található teljes bútorzat és a műszaki berendezések a vételár részét képezik (TV, mosógép, mikrohullámsütő, hűtőszekrény, mosogatógép, sütő, kerámia főzőlap)
- házközponti fűtés, egyedi méréssel
- a közös belsőkert gondozott, az épületek belső részei rendszeresen karbantartottak.
- zárt közös udvarra, valamint az épületekbe kaputelefonos beléptető rendszer kiépített.
- az ingatlan akadálymentesített, lift üzemel.
Per és tehermentes ingatlan
KÖRNYEZET:
Az ingatlan lokációja jó, csendes kertvárosias környezetben, jó tömegközlekedéssel.
Autóval 3-10 percen belül elérhető a SAVOYA és a CAMPONA bevásárló központ, a budafoki városközpont, a piac és a XXII. kerületi szakrendelő.
Közelben található óvoda, iskola, gimnázium, háziorvosi rendelő, cukrászda, virágüzlet, gyógyszertár, éttermek, üzletek.
Autóbusszal 15-20 perc alatt elérhető Kelenföldi pályaudvar, a 4 METRO végállomása és az ETELE pláza.
Amennyiben Önnek a vásárláshoz szüksége lenne hitelre, OTTHON START HITEL, CSOK PLUSZ, babaváró kölcsönre, lakástakarékra, stb., kezdeményezheti a kapcsolatfelvételt bankfüggetlen hitelügyintézőinkkel, teljesen DÍJMENTESEN.
Az ingatlan megtekintése előre egyeztetett időpontban lehetséges, akár hétvégén is.
Amennyiben a hirdetés felkeltette az érdeklődését, további kérdéseivel kapcsolatban várom jelentkezését!