| Ár: 67.378.500 Ft(211.258 €) |
ID: 388691 |

Eladó:
| Név: | Ingatlan Budafok Ingatlaniroda |
| Telefonszám: | , +36-30-250-4987, +36-30-560-5587 |
| E-mail cím: | ibiszk @ ingatlanbudafok.hu, ny.tibor @ ingatlanbudafok.hu, ny.tamas @ ingatlanbudafok.hu |
|
Ingatlan adatok:
| Ár: | 67.378.500 Ft
(211.258 €) |
| Elhelyezkedés: | 6724 Szeged |
| Tranzakció típusa: | Eladó |
| Ingatlan típusa: | Lakás / Tégla |
| Alapterület: | 48 m2 | | Szobaszám: | 2 | | Építés éve: | 2025 | | Állapot: | Újépítésű | | Komfort: | Összkomfortos | | Tetőtér: | Nem tetőtéri | | Emelet: | 1. emelet | | Lift: | Nincs | | Fűtés: | Megújuló energia | | Belmagasság: | 3 méter alatt | | Akadálymentesített: | Nem | | Kertkapcsolatos: | Nem | | Kilátás: | Utcára néző
| | Energetikai tanúsítvány: | AA | | Extrák: | Amerikai konyhás
|
|
Eladásra kínálunk újépítésű lakásokat Szeged Rókus városrész belvárosához közeli csendes utcájában.
Társasházban változatos alapterületű lakások köthetőek le 22 m2-től -78 m2-ig, amelyek 31,6 -108,7 M. forintos áron vásárolhatóak meg.
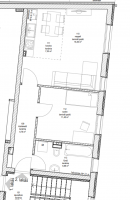
A társasház első emeltén található 48 m2-es lakás elrendezése:
• Amerikai konyhás nappali 23,49 m2
• Hálószoba 11,48 m2
• Fürdőszoba 6,6 m2
• Közlekedő 6,67 m2
Parkolás az utcán vagy a társasházban megvásárolható beálló vagy süllyesztett parkolóliftes beállási helyeken oldható meg.
• Süllyesztett parkolólift ár 4,5 M. forint / db
• Kocsibeálló ára 4,65 M. forint / db
Társasház magas színvonalú kivitelezéssel és minőségi alapanyagok felhasználásával, valamint korszerű energiatakarékos műszaki tartalommal kerül megépítésre.
A generálkivitelező cég évek óta minőségi kivitelezéssel épít ingatlanokat.
A kulcsrakész átadás tervezett időpontja 2026 első félévében.
Kedvezményes hiteligénylés, CSOK, BABAVÁRÓ támogatás esetén, kezdeményezheti a kapcsolatfelvételt díjmentesen bankfüggetlen hitelszakértő munkatársunkkal.
Az ingatlan megtekintése előre egyeztetett időpontban lehetséges, akár hétvégén is.
Amennyiben felkeltette az érdeklődését, további kérdéseivel kapcsolatban várom a jelentkezését.