| Ár: 1.384.676 Ft(4.341 €) |
ID: 352221 |

Eladó:
| Név: | Ingatlan Budafok Ingatlaniroda |
| Telefonszám: | , +36-30-250-4987, +36-30-560-5587 |
| E-mail cím: | ibiszk @ ingatlanbudafok.hu, ny.tibor @ ingatlanbudafok.hu, ny.tamas @ ingatlanbudafok.hu |
|
Ingatlan adatok:
| Ár: | 1.384.676 Ft
(4.341 €) |
| Elhelyezkedés: | 1047 Budapest IV. kerület |
| Tranzakció típusa: | Kiadó |
| Ingatlan típusa: | Ipari / Raktár |
| Alapterület: | 602 m2 | | Állapot: | Közepes állapotú |
|
Az M3-as autópálya és a Váci út közelében található raktárházunkban, földszintes csarnoképületben kínálunk bérelhető területeket, raktárakat, illetve irodákat. Ideális választás többek között komplex szállítmányozási megoldásokhoz.
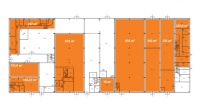
Ipari területen, összesen 4845 m2 csarnoképületben szállítmányozási-, raktározási-, illetve irodai funkciók egyaránt megoldhatók, így azoknak is ideális, akik a vállalat főbb tevékenységi köreit egy központi helyszínre költöztetnék, vagy egy bemutatótermet is szeretnének ezeken felül kialakítani. Épületeinkben 24 órás őrzést biztosítunk.
Ár: 5,90 € /m2+ÁFA-tól
Teljes terület: 4.300 m2
Szabad Terület: 2.751 m2
Min. Bérelhető Terület: 152 m2
Az ingatlanon belül parkolók, raktárak, szerelőműhelyek, üzlethelyiségek találhatók.
Megközelítés:
Újpesten, található ipartelep a Váci útról és az M3-as autópályáról egyaránt megközelíthető gépkocsival vagy nagyobb teherjárművel is. Tömegközlekedéssel az M3-as metró Újpest-központ megállójától gyalog, a 30-as buszcsaláddal, illetve vonattal a Rákospalota megállótól gyalogosan, vagy kerékpárral egyaránt megközelíthető az ipartelep.
Fenntartási és üzemeltetési díj: 1,8 EUR+Áfa / m2 + almérők
Szolgáltatások:
-24 órás telephely őrzés
-Parkolók