| Ár: 84.900.000 Ft(266.194 €) |
ID: 389212 |

Eladó:
 |
Nyegrutz Tibor Tulajdonos/Ügyvezető
+36 30 250 4987 ny.tibor @ ingatlanbudafok.hu |
|
Ingatlan adatok:
| Ár: | 84.900.000 Ft
(266.194 €) |
| Elhelyezkedés: | 1119 Budapest XI. kerület (Albertfalva) |
| Tranzakció típusa: | Eladó |
| Ingatlan típusa: | Lakás / Tégla |
| Alapterület: | 48 m2 | | Szobaszám: | 2 | | Építés éve: | 2006 | | Kizárólagos megbízás: | IGEN | | Állapot: | Jó állapotú | | Komfort: | Összkomfortos | | Tetőtér: | Nem tetőtéri | | Emelet: | 2. emelet | | Lift: | Van | | Fűtés: | Házközponti fűtés egyedi méréssel | | Belmagasság: | 3 méter alatt | | Terasz: | 13 m2 | | Akadálymentesített: | Igen | | Kertkapcsolatos: | Nem | | Kilátás: | Kertre, parkra néző
| | Tájolás: | Északkelet
| | Parkolás: | Közterületen parkolás | | Energetikai tanúsítvány: | BB | | Extrák: | Amerikai konyhás
|
|
CSAK AZ IRODÁNK KÍNÁLATÁBAN !
A XI. kerület Csurgói úton a TÖLGYES LAKÓPARKBAN, egy 2 szobás, amerikai konyhás, 2 emeleti lakást 13 m2-es fedett erkéllyel kínálunk megvételre.
A lakás jó állapotú, modern, praktikusan berendezhető és mindkét szobából kiléphetünk a zöldövezeti kilátást adó nagy erkélyre.
A lakás helyiségei:
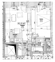
Az előtér 3 m2, nappali amerikai konyhával 16,8 m2, hálószoba 13 m2, fürdőszoba + WC 4 m2, terasz 13 m2.
A helyiségek elrendezését, méreteit lásd az ALAPRAJZON !
A lakópark zárt, biztonsági szolgálat által őrzött terület.
A lakás kulturált zárt lépcsőházból, lifttel is megközelíthető.
A közös költség 20.000 Ft /hó.
Az ingatlan, TEHERMENTES, egy tulajdonostól eladó!
KIVÁLÓ AJÁNLAT lehet azoknak, akik biztonságos, zöldövezeti, nyugodt otthont keresnek.
Az ingatlan tömegközlekedése NAGYON JÓ !
Tétényi út és a Fehérvári út közelsége miatt, busszal, villamossal könnyen megközelíthető. A parkolás közterületen ingyenes.
A közelben minden megtalálható, óvoda, iskola, orvosi rendelő, parkok, játszóterek és bevásárlási lehetőségek.
Hiteligénylés miatt kezdeményezheti díjmentesen a kapcsolatfelvételt hitelszakértő munkatársunkkal.
Az Ingatlan megtekintése ELŐRE EGYEZTETETT IDŐPONTBAN
lehetséges.
Amennyiben felkeltette érdeklődését, további kérdéseivel VÁROM JELENTKEZÉSÉT !
(G.I.)