| Ár: 134.900.000 Ft(422.964 €) |
ID: 389571 |

Eladó:
 |
Horváth Mária Ingatlanközvetitő
+36 20 311 4551 hmari @ ingatlanbudafok.hu |
|
Ingatlan adatok:
| Ár: | 134.900.000 Ft
(422.964 €) |
| Elhelyezkedés: | 1222 Budapest XXII. kerület (Budafok) |
| Tranzakció típusa: | Eladó |
| Ingatlan típusa: | Ház / Családi ház |
| Alapterület: | 120 m2 | | Szobaszám: | 4 | | Építés éve: | 2000 | | Szerkezet: | Tégla ház | | Telek terület: | 792 m2 | | Állapot: | Jó állapotú | | Komfort: | Összkomfortos | | Szintek száma az épületben: | 1 szintes | | Fűtés: | Gáz - cirkó | | Belmagasság: | 3 méter alatt | | Terasz: | 16 m2 | | Akadálymentesített: | Nem | | Kilátás: | Kertre, parkra néző
| | Tájolás: | Délnyugat
| | Extrák: | Amerikai konyhás
|
|
BŐVÍTHETŐ CSALÁDI HÁZ, KEDVELT KÖRNYÉKEN ELADÓ.
XXII. BUDAFOK csendes kertvárosi mellékutcájában, 120m2-es 4 szobás, 2 fürdőszobás TÉGLAÉPÍTÉSŰ, családi ház 790 m2-es telekkel eladó.
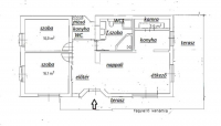
HELYISÉGEI:
FÖLDSZINT:
-előtér
-nappali- konyha- étkező 21m2
-szoba 16 m2
-szoba 10m2
-fürdőszoba káddal-zuhannyal-WC-vel
-mosókonyha WC-vel
-terasz 16m2
TETŐTÉR:
-szoba (jelenleg egy légtér)
-gardrob
-fürdőszoba (zuhany+WC )
-beépítetlen tetőtér 14m2.
A tetőtéri lépcsőfeljáró befejezésre szorul.
FŰTÉS-HŰTÉS:
-gáz cirkó radiátoros hőleadókkal
-padlófűtés kerámiával boritott felületeken
-2 db hűtő-fűtő klíma, mobil klíma.
PARKOLÁS:
-fedett kocsibeálló több autónak
.
KERT:
- füvesített kert örökzöldekkel, gyümölcsfákkal, kerti kisházzal.
EXTRÁK:
-hőszigetelt redőnyős nyílászárók
-10 cm külső szigetelés
-motoros kapuk
-2db klíma
-kedvezményes locsoló vízóra
Kedvező tájolásának köszönhetően ideális napelemes rendszer telepítésére.
BŐVITÉSI LEHETŐSÉG:
Bővíthető, oldalirányban még egy lakás/ház MELLÉ ÉPÍTHETŐ.
A telek megengedett beépítettsége 25%.
Téglaépítésű, jól alakítható ingatlan, minden lakóhelyisége ablakos.
Az ingatlan 2000-ben SAJÁT RÉSZRE ÉPÜLT, az eladók ÉPÍTÉSI DOKUMENTÁCIÓKKAL RENDELKEZNEK.
GOMBAPINCE ÉS MAGASFESZÜLTSÉG MENTES ÖVEZETBEN TALÁLHATÓ, ÖSSZKÖZMŰVES PER ÉS TEHERMENTES INGATLAN.
JÓ TÖMEGKÖZLEKEDÉS:
BUSZ GYORSJÁRATOK a belvárosba és a KELENFÖLDI 4-es METRÓHOZ, elővárosi vasút.
Bevásárlóközpont, TESCO, AUCHAN, LIDL, ALDI, uszoda, játszótér, óvoda-iskola a közelben.
Az ingatlan rugalmasan megtekinthető, további kérdéseivel és időpont egyeztetéssel kapcsolatban várom hívását.
(hm)