| Ár: 149.000.000 Ft(467.173 €) |
ID: 394014 |

Eladó:
| Név: | Ingatlan Budafok Ingatlaniroda |
| Telefonszám: | , +36-30-250-4987, +36-30-560-5587 |
| E-mail cím: | ibiszk @ ingatlanbudafok.hu, ny.tibor @ ingatlanbudafok.hu, ny.tamas @ ingatlanbudafok.hu |
|
Ingatlan adatok:
| Ár: | 149.000.000 Ft
(467.173 €) |
| Elhelyezkedés: | 1222 Budapest XXII. kerület (Budatétény) |
| Tranzakció típusa: | Eladó |
| Ingatlan típusa: | Ház / Ikerház |
| Alapterület: | 88 m2 | | Szobaszám: | 4 | | Építés éve: | 2026 | | Szerkezet: | Tégla ház | | Telek terület: | 250 m2 | | Állapot: | Újépítésű | | Komfort: | Összkomfortos | | Szintek száma az épületben: | 1 szintes | | Belmagasság: | 3 méter alatt | | Terasz: | 18 m2 | | Akadálymentesített: | Nem | | Kilátás: | Kertre, parkra néző
| | Energetikai tanúsítvány: | AA | | Extrák: | Amerikai konyhás
|
|
Eladásra kínálunk Budapest XXII. kerületében Budafokon 250 m2-es kerttel rendelkező belső kétszintes, dupla komfortos, nappali + 3 szobás, összesen 87,5 m2 nettó hasznos lakóterülettel rendelkező, új építésű ikerházat.
Az ingatlan leköthető 2 db. gépkocsibeállóval - igény szerinti befejezéssel.
Elrendezés:
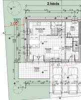
Földszint: nettó 41.93 m2 + terasz
• Nappali 18.26 m2
• Konyha - étkező 11.58 m2
• Előszoba 5.15 m2
• Mosdó 5.27 m2
• Háztartási h. 5.02 m2
• Terasz 13 m2
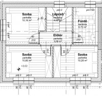
Emelet: nettó 45,64 m2
• 3 szoba 10.8 m2, 10.26 m2, 10.16 m2
• Fürdőszoba + mosdó 6.72 m2
• Előszoba 3,08 m2
• Lépcső 4,62 m2
Kert:
• 200 m2
• 2 db. autóbeálló
Műszaki paraméterek – szerkezeti leírás (részlet):
Beton sávalap. Tégla főfalak + 15 cm dryvit szigetelés.Tégla válaszfalak. Műanyag külső nyílászárók hőszigetelt üvegezéssel. Belső nyílászárók dekorfóliás ajtók. Cserép fedésű tető.
Fűtés: Az épület fűtését hőszivattyús rendszer látja el, minden helyiségben padlófűtés található.
Hideg-meleg burkolatok kiválaszthatók a műszaki leírásban rögzített árak szerint.
Tapasztalt - megbízható generál kivitelező munkájával készül a ház - referencia ingatlanjai megtekinthetőek!
Kiváló lokációval rendelkezik az ingatlan. A közelben található iskola – óvoda – bölcsőde – bevásárlóközpont.
Projekt átadás: 2026. november -december
Az ingatlant fiatal pároknak és családoknak egyaránt ajánljuk.
Amennyiben Önnek a vásárláshoz szüksége lenne hitelre egyedi kedvezménnyel,kezdeményezheti a kapcsolatfelvételt bankfüggetlen hitelügyintézőinkkel, teljesen DÍJMENTESEN.
Az ingatlan részletes ismertetése és bemutatása előre egyeztetett időpontban lehetséges, melyet nagyon rugalmasan kezelünk, akár HÉTVÉGÉN is.
Amennyiben felkeltette az érdeklődését, további kérdéseivel kapcsolatban várom jelentkezését!