Budakeszi
| Település | 2092 Budakeszi | 
| Tranzakció típusa | Eladó | 
| Ingatlan típusa | Lakás / Tégla | 
| Alapterület | 47 m2 | 
| Szobaszám | 2 | 
| Építés éve | 2023 | 
| Állapot | Újszerű | 
| Komfort | Összkomfortos | 
| Tetőtér | Tetőtéri | 
| Emelet | 2. emelet | 
| Lift | Nincs | 
| Fűtés | Gáz - cirkó | 
| Belmagasság | 3 méter felett | 
| Akadálymentesített | Nem | 
| Kertkapcsolatos | Nem | 
| Kilátás | Kertre, parkra néző | 
| Tájolás | Északkelet | 
| Energetikai tanúsítvány | AA+ | 
Közvetlenül a Budakeszi Vadaspark szomszédságában található lakóparkban kínálunk eladásra tetőtéri lakásokat.
A lakások előkészített és kulcsrakész állapotban is megvásárolhatóak.
•	47 m2 bruttó alapterület, (előkészített) befejezésre váró ingatlan ára: 30 MFt.
•	47 m2 bruttó alapterület, kulcsrakész állapot "mintatervek" alapján megvalósított ingatlan ára: 45 MFt.
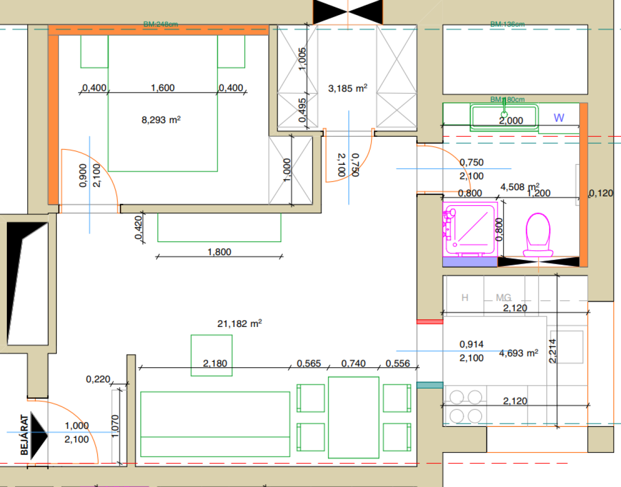
A "mintatervek" alapján egy nettó hasznos 42 m2 alapterületű lakás lenne kialakítva, amely nappali + hálószoba + gardrób + konyha + fürdőszoba helyiségekből állna.
  
•	Nappali 21,18 m2
•	Hálószoba 8,29 m2
•	Gardrób: 3,18 m2
•	Konyha: 4,69 m2
•	Fürdőszoba – mosdó 4,5 m2
A belmagasság lehetővé teszi a lakóterület bővítését akár 15-20 m2-rel is. Újratervezéssel szabadon lehet kialakítani a lakás végleges elrendezését az egyedi ötletek és a saját igények testreszabásának figyelembevételével..
Parkolni a lakópark előtti területen lehet igény szerint teremgarázs is bérelhető.
Az ingatlan banki hitel nélkül vásárolható meg.
Az ingatlan megtekintése előre egyeztetett időpontban lehetséges, akár hétvégén is.
Amennyiben felkeltette az érdeklődését, további kérdéseivel kapcsolatban várom jelentkezését.



 
                         
                
















