Budapest IV. kerület

907.506 Ft/hó

2.845 / hó
ID: 352218
Kiadó Ipari / Raktár
Budapest IV. kerület Kiadó IpariBudapest IV. kerület Kiadó IpariBudapest IV. kerület Kiadó IpariBudapest IV. kerület Kiadó IpariBudapest IV. kerület Kiadó IpariBudapest IV. kerület Kiadó IpariBudapest IV. kerület Kiadó IpariBudapest IV. kerület Kiadó IpariBudapest IV. kerület Kiadó IpariBudapest IV. kerület Kiadó Ipari
Település 1047 Budapest IV. kerület
Tranzakció típusa Kiadó
Ingatlan típusa Ipari / Raktár
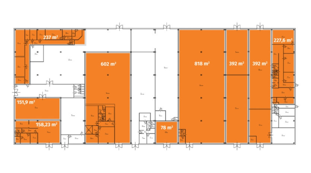
Alapterület 392 m2
Állapot Közepes állapotú

Az M3-as autópálya és a Váci út közelében található raktárházunkban, földszintes csarnoképületben kínálunk bérelhető területeket, raktárakat, illetve irodákat. Ideális választás többek között komplex szállítmányozási megoldásokhoz.

Ipari területen, összesen 4845 m2 csarnoképületben szállítmányozási-, raktározási-, illetve irodai funkciók egyaránt megoldhatók, így azoknak is ideális, akik a vállalat főbb tevékenységi köreit egy központi helyszínre költöztetnék, vagy egy bemutatótermet is szeretnének ezeken felül kialakítani. Épületeinkben 24 órás őrzést biztosítunk.

Ár: 5,90 € /m2+ÁFA-tól
Teljes terület: 4.300 m2
Szabad Terület: 2.751 m2
Min. Bérelhető Terület: 152 m2
További lehetőségek: 608 m2; 818 m2.

Az ingatlanon belül parkolók, raktárak, szerelőműhelyek, üzlethelyiségek találhatók.

Megközelítés:
Újpesten, található ipartelep a Váci útról és az M3-as autópályáról egyaránt megközelíthető gépkocsival vagy nagyobb teherjárművel is. Tömegközlekedéssel az M3-as metró Újpest-központ megállójától gyalog, a 30-as buszcsaláddal, illetve vonattal a Rákospalota megállótól gyalogosan, vagy kerékpárral egyaránt megközelíthető az ipartelep.

Fenntartási és üzemeltetési díj: 1,8 EUR+Áfa / m2 + almérők

Szolgáltatások:
-24 órás telephely őrzés
-Parkolók