Budapest XII. kerület
Kútvölgy

169.000.000 Ft

529.880
ID: 388131
Eladó Lakás / Tégla
Budapest XII. kerület Eladó LakásBudapest XII. kerület Eladó LakásBudapest XII. kerület Eladó LakásBudapest XII. kerület Eladó LakásBudapest XII. kerület Eladó LakásBudapest XII. kerület Eladó LakásBudapest XII. kerület Eladó LakásBudapest XII. kerület Eladó Lakás
Település 1125 Budapest XII. kerület
Településrész Kútvölgy
Tranzakció típusa Eladó
Ingatlan típusa Lakás / Tégla
Alapterület 93 m2
Szobaszám 4
Építés éve 1940
Állapot Felújítandó
Komfort Dupla komfortos
Tetőtér Nem tetőtéri
Emelet Földszint
Lift Nincs
Fűtés Gáz - cirkó
Terasz 20 m2
Akadálymentesített Nem
Kertkapcsolatos Igen
Kilátás Panorámás

Eladásra kínálunk Kútvölgy kedvelt részén egy Ősfás 1100 m2 területen elhelyezkedő patinás házban elhelyezkedő 93 m2 lakást mely 250 m2-es közvetlen kertkapcsolattal rendelkezik.

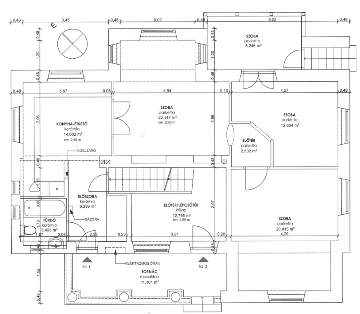
A 93 m2-es lakás az épület földszintjén helyezkedik el.

Lakás elrendezése:

Földszint:
• 3 db. 20,1 - 20,1 - 12,6 m2, 12,6 m2 szoba, + 8,2 m2 télikert
• Konyha - étkező 14,6 m2
• Fürdőszoba 6,2 m2
• Közlekedő 6,2 m2
• Tornác 5,5 m2

Tároló - pince:
• 30 m2

Kert:
• Közvetlen 250-300 m2 kertrész + kerti kemence
• Kocsibeálló 2 autónak is kialakitható terület

A ház 1940-ben épült 55 cm vastag téglafalakkal. Az épület szerkezetileg jó állapotú – feljutása és korszerűsítése esedékes.

Az ingatlant fiatal pároknak -családoknak egyaránt ajánljuk.

A társasházban párhuzamosan kerül értékesítésre a hirdetésben szereplő 93 m2 és a felette található 100 db. első emeleti lakás.

Amennyiben Önnek a vásárláshoz szüksége lenne hitelre egyedi kedvezménnyel,kezdeményezheti a kapcsolatfelvételt bankfüggetlen hitelügyintézőinkkel, teljesen DÍJMENTESEN.

Az ingatlan részletes ismertetése és bemutatása előre egyeztetett időpontban lehetséges, melyet nagyon rugalmasan kezelünk, akár HÉTVÉGÉN is.

Amennyiben felkeltette az érdeklődését, további kérdéseivel kapcsolatban várom jelentkezését!