Budapest XXII. kerület
Óhegy (Nagytétény)

168.000.000 Ft

526.745
ID: 390874
Eladó Ház / Ikerház
Budapest XXII. kerület Eladó HázBudapest XXII. kerület Eladó HázBudapest XXII. kerület Eladó HázBudapest XXII. kerület Eladó HázBudapest XXII. kerület Eladó HázBudapest XXII. kerület Eladó HázBudapest XXII. kerület Eladó HázBudapest XXII. kerület Eladó HázBudapest XXII. kerület Eladó HázBudapest XXII. kerület Eladó Ház
Település 1224 Budapest XXII. kerület
Településrész Óhegy (Nagytétény)
Tranzakció típusa Eladó
Ingatlan típusa Ház / Ikerház
Alapterület 130 m2
Szobaszám 5
Építés éve 2025
Szerkezet Tégla ház
Telek terület 500 m2
Állapot Újépítésű
Komfort Összkomfortos
Szintek száma az épületben 1 szintes
Belmagasság 3 méter alatt
Terasz 500 m2
Akadálymentesített Nem
Kilátás Kertre, parkra néző
Parkolás 1 állásos garázs
Extrák Amerikai konyhás

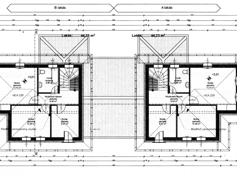
XXII. kerület Óhegy csendes kertvárosias környezetében, összesen 1000 m2-es telken épülő 2 db(,"A" és "B" jelű)130 m2-es 5 szobás, fürdőszobás nagy teraszos, garázzsal rendelkező házak közül CSAK A "B" JELŰ HÁZAT KÍNÁLJUK MEGVÉTELRE !

AZ "A" jelű HÁZ ELADÁSRA KERÜLT !

Mindkét ház ALAPRAJZA, TELEK MÉRETE, KIVITELEZÉSE AZONOS !

A megvételre kínált:
"B" jelű ingatlan KULCSRAKÉSZ ÁRA: 168 millió Ft

Az ingatlanok saját 500 m2-es szeparált telek résszel, egyállásos garázzsal, térkövezett kocsibeállóval, külön mérőórákkal rendelkeznek.
A két lakás két épület tömbben helyezkedik el.
Az épületeket két garázs köti össze.

Helyiségei:
FÖLDSZINTEN: előszoba (5,7 m2), WC kézmosóval, nappali (31,25 m2), konyha-étkező (8,40 m2), vendégszoba (8 m2).

EMELETEN közlekedő(9,3 m2), fürdőszoba(5 m2), 3 hálószoba
(17,7 m2, 12,2 m2 és 8,5 m2 méretűek.)

A MÉRETEKET, ELRENDEZÉST LÁSD AZ ALAPRAJZOKON !

MŰSZAKI TARTALOM:
-Porotherm 30-as falazat,15 cm külső homlokzati szigetelés
-25 cm tetőszigetelés,12 cm lábazat xps szigetelés
-két szint között E gerendás vasbeton födém
-Leier beton cserép,csatorna rendszerrel
-3 rétegű üvegezéssel ellátott, műanyag nyílászárók
-elektromos alumínium redőnyök, szúnyoghálóval
-minden helyiségben padló fűtés, helyiségenként szabályozható
osztógyűrűvel
-Hőszivattyú 10 KWh
-Vízmelegítő hibrid 100 L
-Villamos energia :1x32 A, 1x25 A H tarifás villanyóra
-Hideg és meleg burkolatok 8000 Ft /m2, beltéri ajtók 80.000 Ft /db,
kád 100.000 Ft/db, szaniterek 30.000 Ft / db árig választhatók amit
tartalmaz az ingatlan vételára.

Átadás előtt, tereprendezésre kerül sor, építési törmelék elszállítása,
talaj kiegyenlítés.

TERVEZETT ÁTADÁS IDŐPONTJA : 2026. II. negyedév

A "B" jelű ingatlan eladási ára : 168 millió Ft

A HÁZAK ÖNÁLLÓ MÉRŐÓRÁKKAL, HASZNÁLATBAVÉTELI ENGEDÉLLYEL, TÁRSASHÁZ ALAPÍTÓ OKIRATTAL és H-TARIFÁS VILLANYÓRÁVAL kerülnek átadásra.

A környék lokációja jó, közelben iskola, óvoda, orvosi rendelő, bevásárlási lehetőség található.

Az ingatlan megtekintése előre egyeztetett időpontban lehetséges.
VÁROM HÍVÁSÁT, TOVÁBBI KÉRDÉSEIVEL kapcsolatosan JELENTKEZÉSÉT!
(G.I.)