Budapest XXII. kerület
Háros

1.428.694 Ft/hó

4.480 / hó
ID: 364141
Kiadó Ipari / Raktár
Budapest XXII. kerület Kiadó IpariBudapest XXII. kerület Kiadó IpariBudapest XXII. kerület Kiadó IpariBudapest XXII. kerület Kiadó IpariBudapest XXII. kerület Kiadó IpariBudapest XXII. kerület Kiadó IpariBudapest XXII. kerület Kiadó IpariBudapest XXII. kerület Kiadó IpariBudapest XXII. kerület Kiadó IpariBudapest XXII. kerület Kiadó IpariBudapest XXII. kerület Kiadó IpariBudapest XXII. kerület Kiadó IpariBudapest XXII. kerület Kiadó IpariBudapest XXII. kerület Kiadó IpariBudapest XXII. kerület Kiadó Ipari
Település 1222 Budapest XXII. kerület
Településrész Háros
Tranzakció típusa Kiadó
Ingatlan típusa Ipari / Raktár
Alapterület 605 m2
Állapot Újszerű

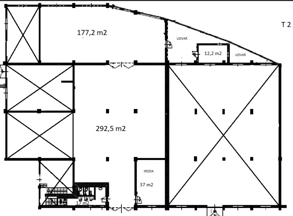
Budapest XXII. kerületének egyik kedvelt ipari parkjában kiadó 540 m2 alapterületű raktár – Iroda 177 m2 fűthető területtel rendelkezik.

Kiváló lehetőség olyan cégeknek, akik a raktározásukat és termelő + irodai tevékenységüket egy helyszínen szeretnék üzemeltetni.

Telephely kialakítása:
Iroda: 37 m2
Füthető raktár: 177 m2 - munkaterületnek
Raktár: 292,5 m2
Külső raktár:12,5 m2
Szociális helységek: 17,m2 mosdó - zuhanyzó
Saját kertrész: 81,5 m2

Bérleti díj: 3688 €
Fenntartási és üzemeltetési költséget tartalmazó bérleti díj 3688 € + almérők költsége

Bérleti idő: minimum 1 év.
Kaució: 2 havi bérleti díjnak megfelelő összeg.

Az M0-ás autópályától 1,5 m-re található iparitelepre, engedély nélkül behajthatnak a 40 t.kamionok és a teherautók.
Az iparitelep tömegközlekedéssel könnyen megközelíthető, telepen található étterem kávézó a munkavállalók napi kényelmét biztosítja. Parkolás a telep területén és az utcán biztosított.

A kiadó raktár azonnal bérbevehető!

Várjuk hívását!