Mende
| Település | 2235 Mende | 
| Tranzakció típusa | Eladó | 
| Ingatlan típusa | Lakás / Tégla | 
| Alapterület | 61 m2 | 
| Szobaszám | 1 + 3x½ | 
| Építés éve | 2025 | 
| Állapot | Újépítésű | 
| Komfort | Összkomfortos | 
| Tetőtér | Nem tetőtéri | 
| Emelet | Földszint | 
| Lift | Nincs | 
| Belmagasság | 3 méter alatt | 
| Terasz | 2 m2 | 
| Akadálymentesített | Igen | 
| Kertkapcsolatos | Igen | 
| Kilátás | Kertre, parkra néző | 
| Tájolás | Északkelet | 
| Energetikai tanúsítvány | AA | 
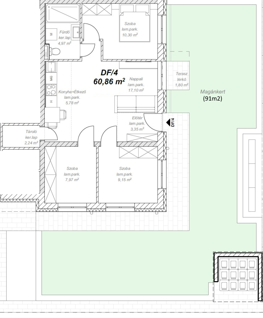
Mendén csodálatos zöld környezetben a Hétdomb lakóparkban, I. ütem második szakaszában megvalósuló új építésű zárt lakóparkban, A. kategóriás energiatakarékos ( hőszivattyús ) 16 lakásos társasházban, nettó hasznos 65,83 m² alapterületű, FÖLDSZINTI kertkapcsolatos lakást, SAJÁT 101 m² KERTRÉSSZEL kínálunk eladásra ( D épület Földszint 4. Lakás ).
Fontos kiemelni, hogy a lakás egyik különleges előnye, hogy a bejárat nem a hagyományos lépcsőházból, hanem a lakás saját, belső kertrészén keresztül közelíthető meg. Ez az egyedi kialakítás nemcsak esztétikai értéket képvisel, hanem jelentősen növeli a privát komfortérzetét is — a közvetlen kertkapcsolat révén nyugodtabb, intimebb lakókörnyezetet biztosít, mint a szokványos társasházi megoldások.
A kivitelező cég szem előtt tartja az alacsony rezsiköltséget, ezért a projekt a legkorszerűbb követelményeknek megfelel, ( lásd műszaki tartalom ).
Az épületek társasházzá lesznek nyilvánítva, így a lakások külön helyrajzi számmal azaz albetéttel rendelkeznek majd.
A lakások fűtését hőszivattyú biztosítja padlófűtéses hőleadással, a használati melegvíz ellátást minden lakásban hőszivattyús bojler biztosítja.
Felszíni kocsibeálló bruttó ára: 2,5 MFt./db. és 3 MFt/db-ig (itt már elektromos töltési lehetőséggel)
Tároló bruttó ára: 2 MFt./db.
C. épület vállalt befejezési ideje: 2026.03.30.
C. épület várható használatbavétele: 2026.06.30.
Műszaki tartalom ( részlet ):
-Alapozás: Monolit vasbeton lemezalapozás
-Teherhordó falazat: Porotherm vázkerámia falazat, érintkező falaknál SILKA (hanggátló) mészhomoktégla falazat
-Válaszfalak: Falazott vagy Gipszkarton válaszfalak, kétoldali vakolással vagy gletteléssel
-Tetőszerkezet: Szeglemezes rácsostartó faváz szerkezet
-Nyílászárók: Fokozott légzárású 3 rtg-ű műanyag nyílászárók / k=min.: 1,0 W/m2K /
-Vízszigetelés: 1, 2 rtg vagy kent modifikált bitumenes vastaglemez szigetelés
-Hőszigetelés: Lábazaton 15 XPS hőszigetelés, oldalfalon 15 cm EPS hőszigetelés
-Héjalás: Cserépfedés, bádogos kiegészítő elemekkel
-Homlokzatburkolatok: Homlokzati színezett vakolat
-Padlóburkolatok: Kerámia hidegburkolatok, laminált parketta melegburkolatok
-Falburkolatok: Belső oldali vakolat, festve, felület kezelve, vizes helyiségekben kerámia burkolat
Az ingatlan részletes ismertetése és bemutatása, előre egyeztetett időpontban lehetséges, amelyet nagyon rugalmasan kezelünk, akár HÉTVÉGÉN is.
További kérdéseivel kapcsolatban várom a jelentkezését.
Amennyiben Önnek a vásárláshoz szüksége lenne hitelre, babaváró kölcsönre, lakástakarékra, stb., kezdeményezheti a kapcsolatfelvételt bankfüggetlen hitelügyintézőinkkel, teljesen DÍJMENTESEN.
Közel 25 év szakmai tapasztalattal rendelkezem, eladó vagy kiadó ingatlana értékesítése vagy bérbeadása esetén, készséggel állok az Ön rendelkezésére is, keressen bizalommal.



 
                         
                





























