Budapest IV. kerület
| Település | 1047 Budapest IV. kerület |
| Tranzakció típusa | Kiadó |
| Ingatlan típusa | Ipari / Raktár |
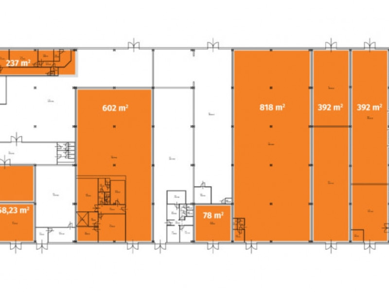
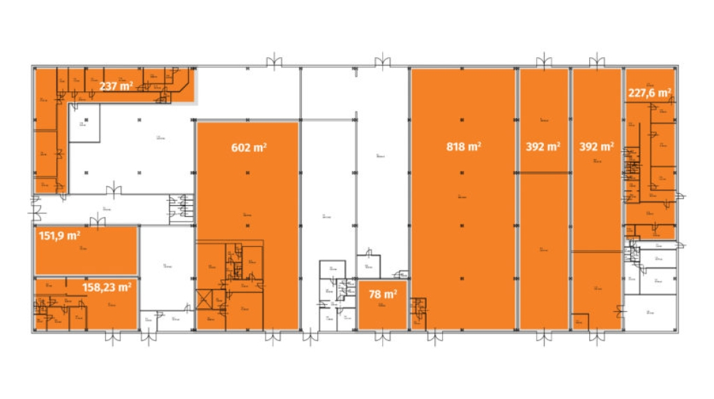
| Alapterület | 602 m2 |
| Állapot | Közepes állapotú |
Az M3-as autópálya és a Váci út közelében található raktárházunkban, földszintes csarnoképületben kínálunk bérelhető területeket, raktárakat, illetve irodákat. Ideális választás többek között komplex szállítmányozási megoldásokhoz.
Ipari területen, összesen 4845 m2 csarnoképületben szállítmányozási-, raktározási-, illetve irodai funkciók egyaránt megoldhatók, így azoknak is ideális, akik a vállalat főbb tevékenységi köreit egy központi helyszínre költöztetnék, vagy egy bemutatótermet is szeretnének ezeken felül kialakítani. Épületeinkben 24 órás őrzést biztosítunk.
Ár: 5,90 € /m2+ÁFA-tól
Teljes terület: 4.300 m2
Szabad Terület: 2.751 m2
Min. Bérelhető Terület: 152 m2
Az ingatlanon belül parkolók, raktárak, szerelőműhelyek, üzlethelyiségek találhatók.
Megközelítés:
Újpesten, található ipartelep a Váci útról és az M3-as autópályáról egyaránt megközelíthető gépkocsival vagy nagyobb teherjárművel is. Tömegközlekedéssel az M3-as metró Újpest-központ megállójától gyalog, a 30-as buszcsaláddal, illetve vonattal a Rákospalota megállótól gyalogosan, vagy kerékpárral egyaránt megközelíthető az ipartelep.
Fenntartási és üzemeltetési díj: 1,8 EUR+Áfa / m2 + almérők
Szolgáltatások:
-24 órás telephely őrzés
-Parkolók